Ресиверы – это специальные устройства, воздухосборники, работающие под давлением. Они являются составной частью большинства моделей поршневых компрессоров. Ресиверы обеспечивают стабильную и бесперебойную работу компрессорного оборудования в случае его временного отключения, снижают уровень шума и вибрации.
Важнейшей технической характеристикой ресивера является его объём. Компрессоры разных типов могут быть укомплектованы одним и более ресиверами, имеющими различный объём. Это зависит от таких параметров, как производительность поршневого компрессора и характер его воздухопотребления. Так, профессиональные поршневые компрессоры, используемые в строительстве, имеющие ременной привод в двухцилиндровых одноступенчатых установках, производительность которых от 250 л/мин, предусматривают установку одного или нескольких ресиверов объёмом от 25 до 200 литров. Модели промышленных компрессоров, ориентированных на использование в машиностроении, энергетике, а также химической отрасли и имеющие производительность от 330 до 850 л/мин, комплектуются одним ресивером объёмом от 100 до 500 литров.
Ресиверы, представленные сегодня на российском рынке – это продукция белорусской компании Remeza, итальянского концерна Ceccato и Бежецкого завода. Это качественное и надёжное оборудование, несложное в эксплуатации и обслуживании, с оптимальным балансом цены и качества.
Важнейшей технической характеристикой ресивера является его объём. Компрессоры разных типов могут быть укомплектованы одним и более ресиверами, имеющими различный объём. Это зависит от таких параметров, как производительность поршневого компрессора и характер его воздухопотребления. Так, профессиональные поршневые компрессоры, используемые в строительстве, имеющие ременной привод в двухцилиндровых одноступенчатых установках, производительность которых от 250 л/мин, предусматривают установку одного или нескольких ресиверов объёмом от 25 до 200 литров. Модели промышленных компрессоров, ориентированных на использование в машиностроении, энергетике, а также химической отрасли и имеющие производительность от 330 до 850 л/мин, комплектуются одним ресивером объёмом от 100 до 500 литров.
Ресиверы, представленные сегодня на российском рынке – это продукция белорусской компании Remeza, итальянского концерна Ceccato и Бежецкого завода. Это качественное и надёжное оборудование, несложное в эксплуатации и обслуживании, с оптимальным балансом цены и качества.
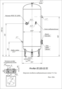
Производитель
—
Remeza
Давление
—
11 атм
Вес
—
36 кг
23 530 руб/шт
В корзину
Купить в 1 клик
Производитель
—
Ceccato
Давление
—
11 атм
Вес
—
73 кг
23 439 руб/шт
В корзину
Купить в 1 клик
Производитель
—
Remeza
Давление
—
11 атм
Вес
—
95 кг
32 503 руб/шт
В корзину
Купить в 1 клик
Производитель
—
АСО Бежецк
Давление
—
16 атм
Вес
—
55 кг
33 500 руб/шт
В корзину
Купить в 1 клик
Производитель
—
Remeza
Давление
—
16 атм
Вес
—
115 кг
34 700 руб/шт
В корзину
Купить в 1 клик
Производитель
—
Ceccato
Давление
—
11 атм
Вес
—
73 кг
31 587 руб
В корзину
Купить в 1 клик
Производитель
—
АСО Бежецк
Давление
—
10 атм
Вес
—
142 кг
37 700 руб/шт
В корзину
Купить в 1 клик
Производитель
—
АСО Бежецк
Давление
—
10 атм
Вес
—
55 кг
39 500 руб/шт
В корзину
Купить в 1 клик
Производитель
—
Remeza
Давление
—
11 атм
Вес
—
125 кг
40 285 руб/шт
В корзину
Купить в 1 клик
Производитель
—
Remeza
Давление
—
11 атм
Вес
—
125 кг
40 285 руб/шт
В корзину
Купить в 1 клик
Производитель
—
Remeza
Давление
—
11 атм
Вес
—
125 кг
40 285 руб/шт
В корзину
Купить в 1 клик
Производитель
—
АСО Бежецк
Давление
—
16 атм
Вес
—
189 кг
42 200 руб/шт
В корзину
Купить в 1 клик
Производитель
—
АСО Бежецк
Давление
—
16 атм
Вес
—
60 кг
43 200 руб/шт
В корзину
Купить в 1 клик
Производитель
—
Remeza
Давление
—
16 атм
Вес
—
116 кг
44 863 руб/шт
В корзину
Купить в 1 клик
Производитель
—
Remeza
Давление
—
16 атм
Вес
—
116 кг
44 863 руб/шт
В корзину
Купить в 1 клик
Производитель
—
Remeza
Давление
—
16 атм
Вес
—
155 кг
44 863 руб/шт
В корзину
Купить в 1 клик
Производитель
—
Ceccato
Давление
—
11 атм
Вес
—
136 кг
39 828 руб/шт
В корзину
Купить в 1 клик
Производитель
—
Berg
Давление
—
10 атм
Объем ресивера
—
500 л
Подбор по ресиверу
—
500 л
Вес
—
160 кг
56 000 руб/шт
В корзину
Купить в 1 клик
Производитель
—
Ceccato
Давление
—
11 атм
Вес
—
136 кг
50 906 руб
В корзину
Купить в 1 клик
Производитель
—
Berg
Давление
—
16 атм
Объем ресивера
—
500 л
Подбор по ресиверу
—
500 л
Вес
—
160 кг
59 000 руб/шт
В корзину
Купить в 1 клик
Производитель
—
АСО Бежецк
Давление
—
10 атм
Вес
—
150 кг
64 200 руб/шт
В корзину
Купить в 1 клик
Производитель
—
АСО Бежецк
Давление
—
16 атм
Вес
—
200 кг
71 500 руб/шт
В корзину
Купить в 1 клик
Производитель
—
COMPRAG
Давление
—
10 атм
Вес
—
92 кг
63 860 руб
В корзину
Купить в 1 клик
Производитель
—
Ceccato
Давление
—
11 атм
Вес
—
217 кг
64 273 руб/шт
В корзину
Купить в 1 клик
Производитель
—
АСО Бежецк
Давление
—
10 атм
Вес
—
165 кг
78 800 руб/шт
В корзину
Купить в 1 клик
Производитель
—
АСО Бежецк
Давление
—
10 атм
Вес
—
255 кг
80 700 руб/шт
В корзину
Купить в 1 клик
Производитель
—
Remeza
Давление
—
21 атм
Вес
—
125 кг
83 500 руб/шт
В корзину
Купить в 1 клик
Производитель
—
Remeza
Давление
—
10 атм
Вес
—
226 кг
86 247 руб/шт
В корзину
Купить в 1 клик
Производитель
—
Ceccato
Давление
—
11 атм
Вес
—
217 кг
76 817 руб
В корзину
Купить в 1 клик
Производитель
—
Berg
Давление
—
10 атм
Объем ресивера
—
900 л
Подбор по ресиверу
—
900 л
Вес
—
265 кг
98 000 руб/шт
В корзину
Купить в 1 клик
Производитель
—
Remeza
Давление
—
10 атм
Вес
—
226 кг
102 544 руб/шт
В корзину
Купить в 1 клик
Производитель
—
COMPRAG
Давление
—
10 атм
Вес
—
142 кг
94 236 руб
В корзину
Купить в 1 клик
Показать еще






